Computer aided Design für den Messebau

Natürlich fertigen wir nicht nur bunte Bilder, sondern auch Pläne für den Aufbau, sowie Detailzeichnungen von z. B. Theken oder sonstigem Standmaterial.

 

Alle Zeichnungen werden als PDF-Dateien, normalerweise auf Basis von DinA4 oder DinA3, ausgegeben. Größen von DinA2 bis DinA0 sind selbstverständlich auch möglich; ausgedruckt und per Post, oder auf elektronischem Wege als Datei.

Falls gewünscht, gibt es natürlich auch das im CAD übliche DXF oder DWG Format.

Die PDF-Pläne sind immer im Maßstab und können auf jedem Drucker im jeweiligen Maßstab ausgedruckt werden.

 

Im Folgenden einige Beispiele, allerdings in geringer Auflösung für das Internet.

 

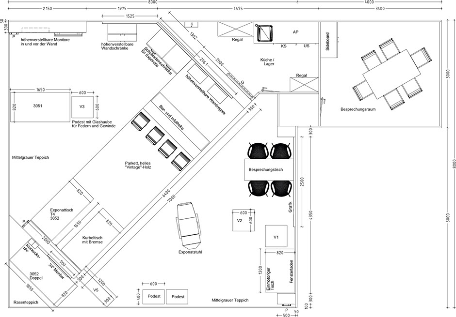
Grundrissplan eines Systemmessestandes

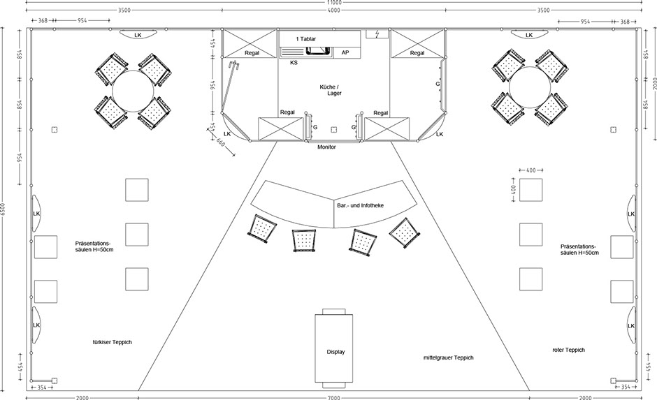
Grundrissplan eines konventionellen Messestandes

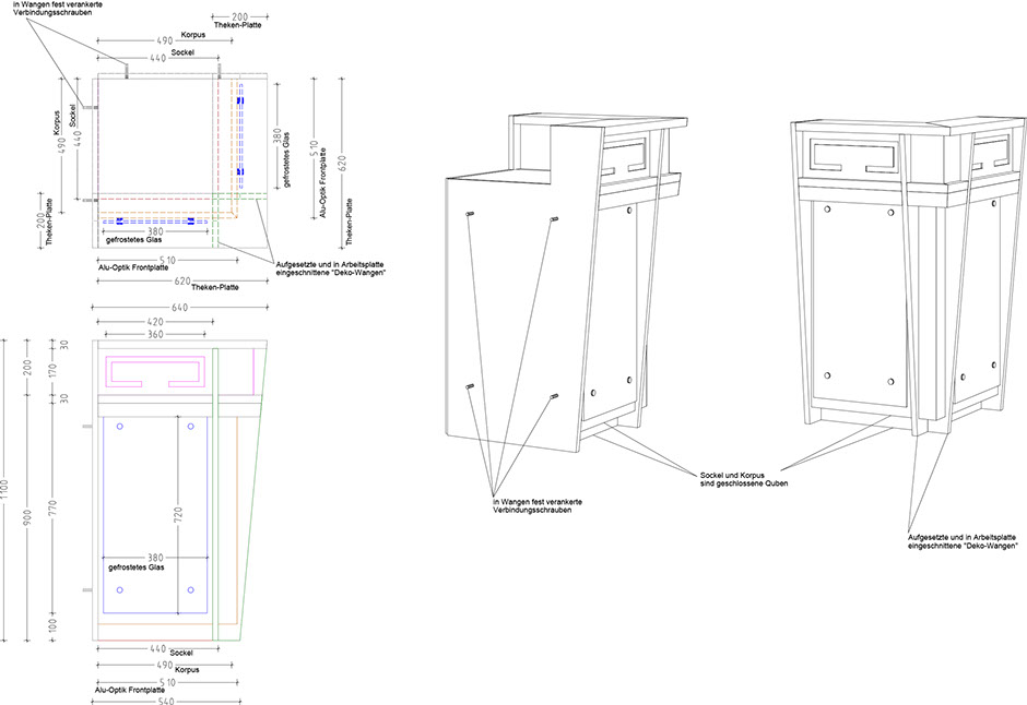
Detailzeichnung Thekenelemente

Detailzeichnung Ecktheke

Detailzeichnung Einbau eines Exponates in eine Podeststufe

Detailzeichnung Einbau eines Exponates in eine Podeststufe

Copyright © 2015 CADO Dirk Oldenburg